Majitel koupil více než 100 let starý opuštěný, zanedbaný dům v centru Rožnova pod Radhoštěm. Tak dlouho kolem něj chodil, až se do něj zamiloval.
Zadání znělo jasně - celková rekonstrukce domu na soudobé standardy bydlení, vytvoření dvou nezávislých bytových jednotek, pokud možno s vlastním vstupem, zázemím a možností jejich přímého propojení, zachování původního výrazu stávající budovy.
Původní barák je součástí dříve jednotné zástavby ulice Čechovy šesti rodinnými domy z „jedné ruky“ dua významných místních stavitelů začátku minulého století. Samotný částečně podsklepený objekt z tradičního zdiva s jedním podlažím a dílem obydleným podkrovím není památkově chráněn, ale stojí na pomezí ochranné zóny kostela Všech svatých.
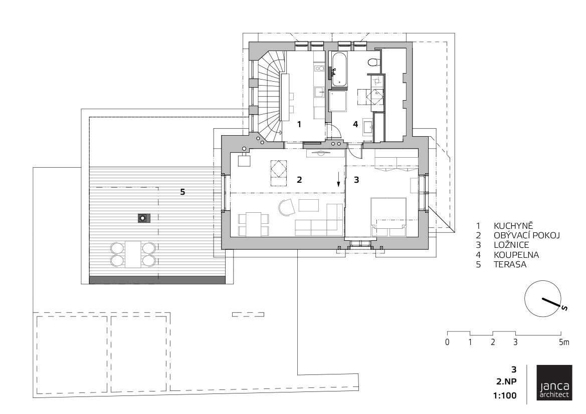
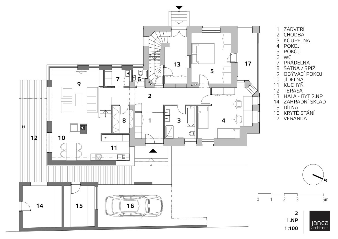
Vzhledem ke stavebnímu programu bylo nutné realizovat přístavbu. Ve shodě s investorem jsme chtěli v maximální ekonomicky únosné míře zachovat vzhled původního objektu. Od začátku jsme byli rozhodnuti postavit proti sobě historii a současnost stavby. Toto se promítá i ve výsledném výrazu a materiálovém řešení. Do ulice zůstal původní objekt téměř nezměněn, i přes silné zateplení obvodové obálky byly zachovány původní proporce, hloubka osazení oken, jejich členění, hrázdění, ozdobné vlysy s florálním motivem apod. Nová část je orientovaná do zahrady a je skryta hlavním pohledům z ulice, odkud dává jen tušit něco dalšího. Je zde umístěn technický blok z pohledového betonu a přístavba obytné části bytu na úrovní 1. NP se střešní částečně krytou terasou pro byt v podkroví, tato část je vystavěna z tradičního keramického zdiva a opatřena větranou bondovou fasádou a hliníkovými okny. Součástí obnovy bylo i nové oplocení či zpevněné plochy z žulových odseků v rastru z řezaných žulových bloků.​​​​​​​

Další projekty

Back to Top